urban sanctuary

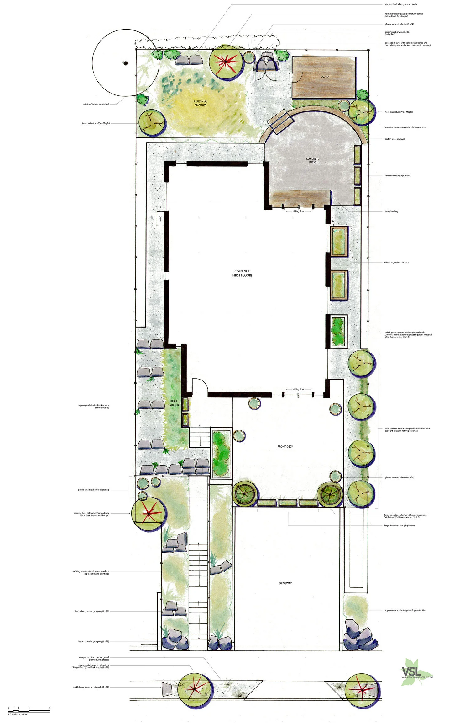
This sloped urban infill property offered limited space to satisfy the clients’ outdoor requirements of entertaining, self-care, privacy and pollinator habitat.

Industrial materials, including weathering steel and concrete, relate the garden to the spare, modern vocabulary of the home, while natural stone, cedar, and lush vegetation create a soothing, welcoming environment. A repeating arc form in the sauna, shower and seat wall, and steel details unifies the various elements into a cohesive space. The stacked stone bench provides a place to experience the pollinator meadow. Lightweight containers with heat- and wind-tolerant plantings soften the roof decks. All existing plant material on site was repurposed in the finished landscape.

Design collaboration and landscape installation by Van Sanden Landscaping. Metalwork co-design and fabrication by Mod Studio.

Summary Block
This block is invalid. Please check the block settings and try again.